・大府市 B保育園見学
去年、基本設計に携わった大府市の保育園の見学に行ってきました。
基本設計とは、建築物に対する大まかな仕様を決める過程になります。

大人の事情で残念ながら実施設計(基本設計の後に行う詳細な設計)には至らず、こだわりたかった空間や動線も(多分)工期の関係で無くなっていましたが、それでもあの短期間でよく開発から設計施工と勧めて完成されたなと感心するばかり。

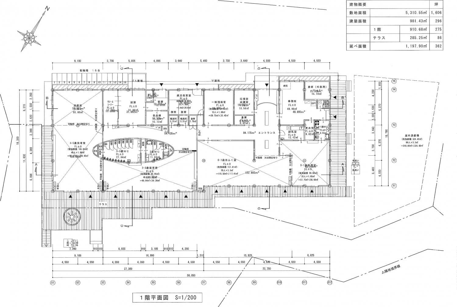
こちらが基本設計の平面図です。
木のぬくもり、開放感を持たせることでお子様たちがのびのびと過ごせる空間を提供できればという思いから設計しております。
外観・内観
北側(外観) 南側デッキ

園庭水場 年長室から年少室へ


年長室① 年長室②

年少室 年長トイレ

幼児トイレ① 幼児トイレ②

後日、設計段階で計画に携わられた園の先生方の苦労話もお聞きでき、色々と勉強になりました。
子供たちが保育園に来るのがより楽しみになるような、そんな気持ちを持っていくれていたら嬉しいなと思います。
よく読まれている関連コンテンツ